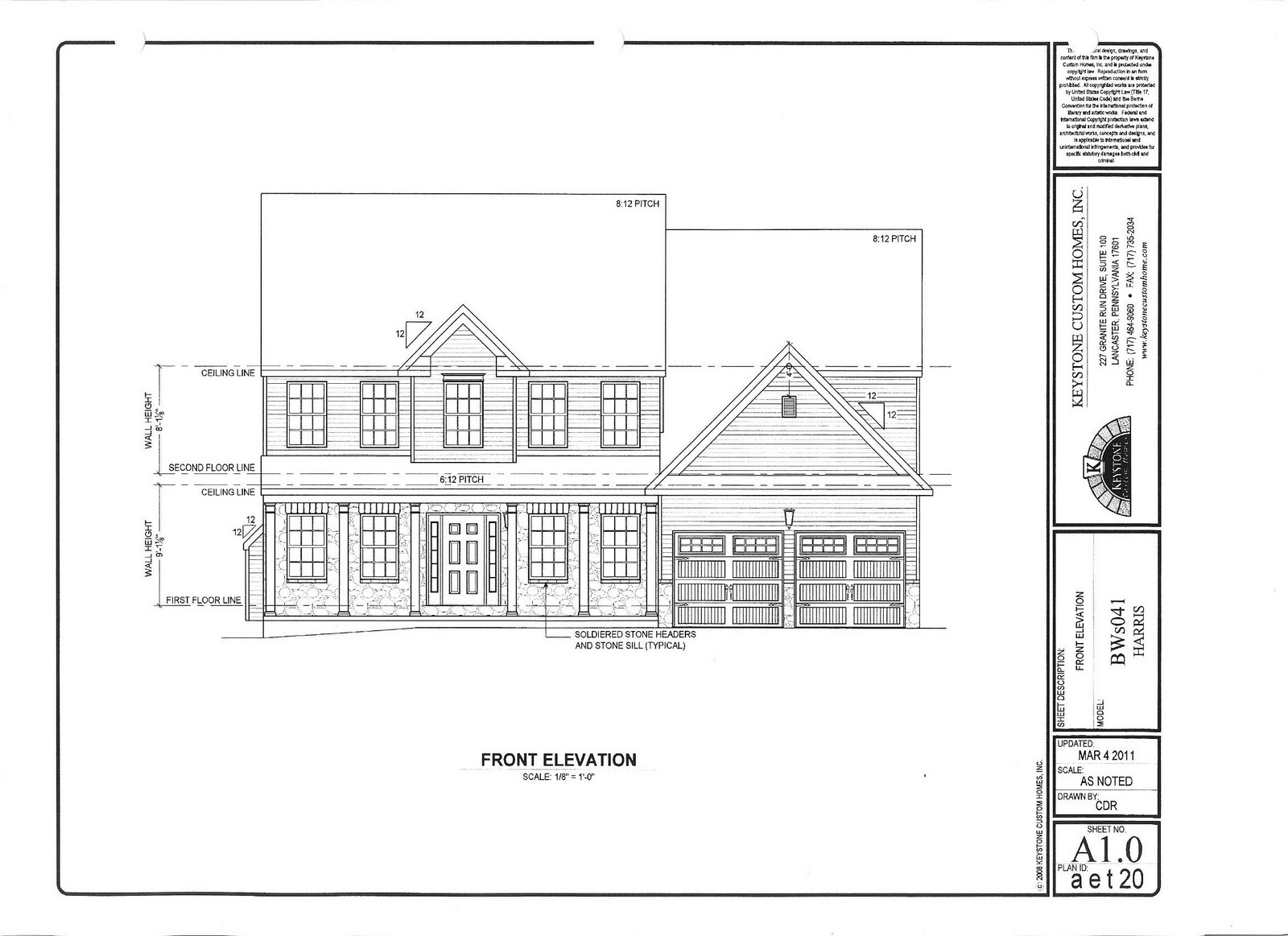
Want to see what the front of our new house is going to look like??
FINE!
Here's a little sneak peek :0)
LOVE the carriage garage doors AND the side lites along the door AND the front porch! Settlement date should be on or right around the first week of JUNE!!!

2 comments:
Really excited for you guys! Can't wait to visit!
Looks beautiful! I love hearing about your new house and can't wait to see the progress as it is built!
Post a Comment